Angebot Nr.: 55.1.5
55.1.5 Eichendorffstr. 20 72488 Sigmaringen
Frei ab:
01.08.2026
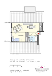
1-Zimmer-Wohnung, Dachgeschoss links
Eichendorffstr. 20
72488 Sigmaringen
mit Kochnische ohne Einbauküche, Bad, Stellplatz,
optional 2. Stellplatz dazu mietbar
Wohnfläche:32,00 m²
Baujahr:1957
Miete o.NK.:260,00 €
Betriebskostenvorauszahlungen150,00 €
nicht enthalten: Müll , Strom
Stellplatzmiete25,00 €
Gesamtmiete (p.M.)
435,00 €
Geschäftsanteile Einz. insges.:800,00 €
Energieausweis
Verbrauchsausweis, 108,2 kWh(m²a)
Erdgas,
Energieeffizienzklasse: D
Warmwasser enthalten
Grundriss / weitere Ansicht
55.1.5 Eichendorffstr. 20 72488 Sigmaringen
Ja, ich habe Interesse
Ein Angebot der Baugenossenschaft Bad Saulgau eG
Pfarrstraße 7 • 88348 Bad Saulgau • 07581/4838-0 (Tel) bzw. -20 (Fax)
Vorstand: Michael Dobe, Alfred Hage
Aufsichtsratvorsitzender: Helmut Kabus
USt-IdNr: DE146608530
Registergericht: Amtsgericht Ulm GnR 560067
Sitz der Genossenschaft: Bad Saulgau
